Fire Evacuation & Fire Suppression System Drawings
Request Services
Why you need CAD drawings for your safety records:
CAD drawings help engineers and designers create detailed 2D or 3D illustrations that show various components of a project. We can provide a package that includes system drawings, general notes, appropriate equipment, and coverage datasheets from the manufacturer manual. We can also include pipe isometrics, floor plans and other custom features to meet your company's needs or requirements from the authority having jurisdiction (AHJ).
The CAD drawing services we offer:
Levitt-Safety has experienced in-house technical design specialists who can create CAD drawings for the following areas:
- Fire evacuation plans
- Vehicle fire suppression systems
- Kitchen and industrial pre-engineered systems
- Special hazards/engineered systems
Fire evacuation and safety plan CAD drawings
Evacuation plans are often required for health and safety policies and increase safety for your team and visitors unfamiliar with your building. Our technical specialists can take your building layout plans and overlay emergency device locations and evacuation plans. We can include features like:- fire extinguishers
- emergency lighting
- fire alarm devices
- emergency showers
- defibrillator locations
- muster points, and
- egress paths.

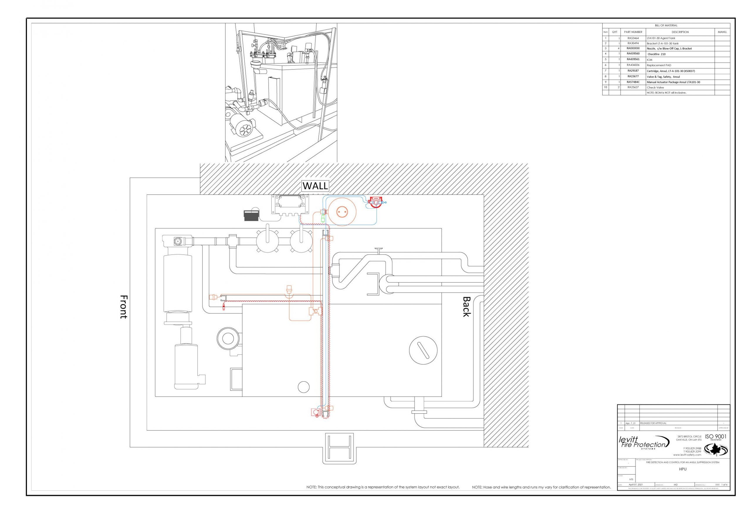
Vehicle fire system CAD drawings
Vehicle fire suppression systems are critical to protecting vehicle operators, mitigating damage to equipment and reducing downtime.
Most manufacturer manuals state you need to document the entire fire system installation with drawings, photographs and/or written descriptions.
A CAD drawing can fulfill these requirements. Vehicle fire suppression system CAD drawings outline all the components and their locations, as well as nozzle placement and direction.
Levitt-Safety specializes in Amerex, Ansul, Fogmaker and Dafo. Our technical specialist can create CAD drawings for any system whether it's a new install or an existing system.

Kitchen and industrial pre-engineered systems CAD drawings
Kitchen fire suppression systems protect workers, guests and the greater public in restaurants, hotels, food trucks, and fast food establishments across Canada.
We can create submittal drawings for all major brands of restaurant fire suppression systems.
Not only are CAD drawings important for insurance purposes, it can be used as a training tool, reduce downtime during servicing and maintain pre-engineered requirements should new equipment need to be installed.

Special hazards/engineered systems CAD drawings
Engineered systems are very specialized drawings that include system calculations and specifications.
We work with general contractors and engineering firms to design and layouts systems for new builds.
Our in-house team meets all codes, specifications and provincial regulations and standards in the drawings.
This ensures the systems are properly installed on-site and will work when needed.

Benefits of fire system CAD drawings:
- Record of Installation: Ensures the system is up to code, meets manufacturer requirements and the potential needs of your insurance company.
- Record of Original Design: This is useful in instances where a design needs to be changed due to other maintenance performed on the equipment.
- Clear Layout: The CAD drawing provides a clear idea of what is covered and where the components are located.
- Maintains Consistency: Serves as a reference for application installations to maintain consistency and reduce the risk of rework.
- Quality Assurance: It’s an additional level of quality assurance and quality control (QA/QC) as well as installation verification.
Have Levitt-Safety do the work:
With over twenty years of experience creating CAD drawings, our team of experienced professionals can help you with any of these types of requests -- and we love a challenge!
Fill out the form on this page to get started, and a team member will contact you to answer your questions and recommend the best package for your needs.